

在鋼格板的實際應用中,常常會遇到很多分塊塊或者異形鋼格板。這些鋼格板往往不是標準尺寸,而是各種不規則的形狀。比如:圓形、梯形、半圓型等各種不規則形狀的鋼格板。加工生產主要有切角、割孔、切弧等工序,從而避免鋼格板到工地后進行二次切割加工,從而使施工安裝更快速簡單,也避免了現場切割造成鋼格板鍍鋅層的破壞。

目前,制作異形鋼格板或分塊鋼格板時,需使用鋼格板壓阻焊機(只配置一副梳形夾)先統一焊成6m×1m的原板,人工把原板切割成分塊,或根據需要再把分塊切割到需要的形狀,再進行切頭和包邊。這種制作方式工序繁瑣,浪費材料,人工切割精確度低,增加工時,勞動強度大。
發明內容
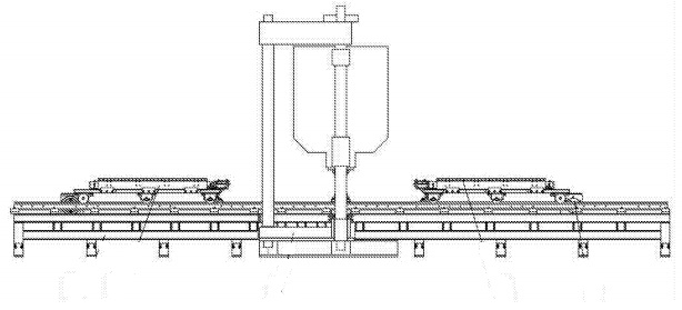
現在介紹一種小塊鋼格板焊接機,以解決存在的工序繁瑣,浪費材料,人工切割精確度低,增加工時,勞動強度大的問題。采用的技術方案是:一種分塊或異形鋼格板焊接機,其特征在于電阻壓焊機下面設置帶有軌道的機架,焊接工作臺上設置若干副油缸驅動夾緊的梳形夾,伺服電機通過傳動機構驅動焊接工作臺沿機架上的軌道運動。其中,電阻壓焊機前后機架的軌道上各設置一組焊接工作臺,實現兩組焊接工作臺的交替焊接。梳形夾采用分體對中夾。結構示意圖:

與現有技術比較所具有的有益效果是:由于采用上述技術方案,焊接工作臺在伺服電機驅動下沿工作臺軌道移動,使用多副梳形夾,將扁鋼按照需要的鋼接,直接壓焊成需要的分塊或異形鋼格板。這樣,無需從原板上切割,自動化程度提升,節省材料,扁鋼形狀定位精準。兩組焊接工作臺交替工作,一組焊壓時另一組進行扁鋼穿入梳形夾的工序,節省了焊機的等待時間,可實現批量化生產,提高生產效率。


